Casa Florian
Fam. Dissertori - Maier
Termeno
(276m s.l.m.)
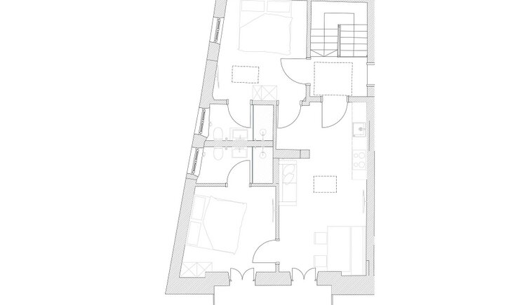
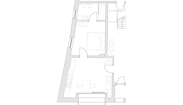
Galleria immagine: Casa Florian
Descrizione
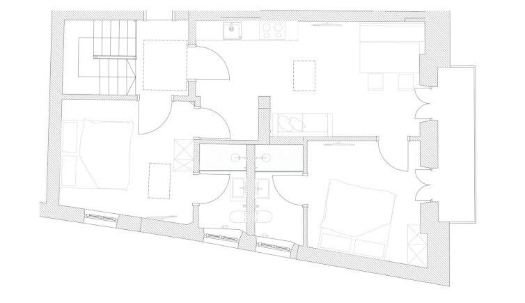
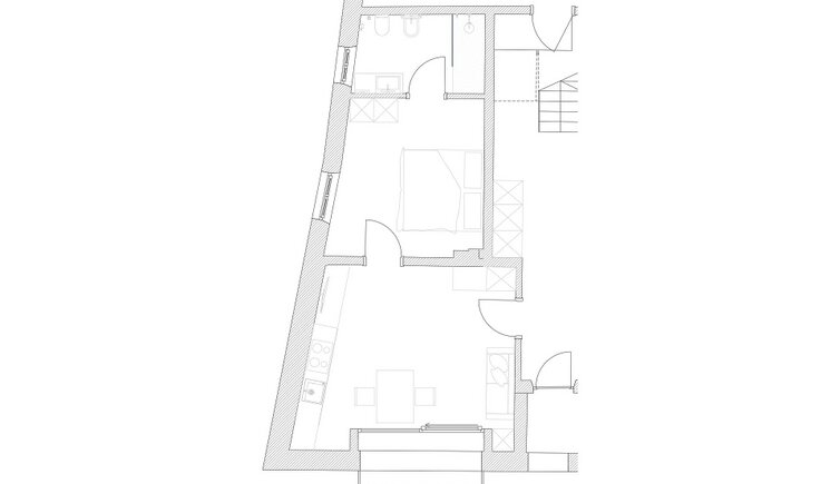
Inverno 2026: stiamo rinnovando per te! Preparati a scoprire i 2 nuovi appartamenti e la camera matrimoniale "Morgensonne".
Trascorri le tue vacanze sul lato soleggiato della vita, nel nostro maso frutticolo e vinicolo.
Lontano dalla quotidianità… per rilassarti, staccare la spina e sentirti finalmente a tuo agio.
Potrai farlo prendendo il sole su una sedia a sdraio, riposandoti sotto la nostra pergola o sorseggiando un calice del nostro vino.
La posizione centrale è ideale per escursioni, gite in bicicletta, nuotate e molto altro; troverai sicuramente l’attività che fa per te.
Vivi un soggiorno da ricordare.
Ti aspettiamo!
Famiglia Dissertori – Maier
Rispetta i criteri di qualità per
Dotazione e servizi
Servizi generali
- Balcone / Terrazzo
- Cassaforte
- Apparecchio TV
- Asciugacapelli / fon
- TV in camera
Sostenibilità
- Adeguata raccolta differenziata dei rifiuti
- Rinuncia alla pulizia giornaliera della camera
- Illuminazione LED a risparmio energetico
Appartamenti e residence
- Cucina abitabile
- Cucina con dotazione completa
- Stoviglie da cucina e da tavola
- Divano letto (estraibile)
- Biancheria da letto disponibile
- Riscaldamento a pavimento
- Congelatore
- Piano cottura a induzione
- Biancheria da bagno disponibile
- Lavastoviglie
- Macchina da caffè
- Forno a microonde
- Appartamento con TV
- Servizio pane
- Pulizia finale inclusa
Ristorazione
- Vacanze in azienda frutticola / vinicola
Giardino e ambiente
- Terrazza
- Prato/giardino
- Sdraio / sedie a sdraio disponibili
- Cantina vinicola
- Orto di erbe aromatiche
- Parcheggio
- Parcheggio interrato motocicli
- Parcheggio riservato
Offerta sport
- Deposito bici con serratura
- Calcio balilla
Servizi
- Servizio pick-up
- Carta vantaggi inclusa
- Animali non ammessi
- WLAN Internet (WiFi)
Posizione
- Vista panoramica
- Posizione tranquilla
- Posizione centrale
- Fermata autobus nelle immediate vicinanze
- Negozi di alimentari nelle immediate vicinanze
- Ristorante nelle immediate vicinanze
Lingue parlate
- Tedesco
- Italiano
- Inglese
Appartamento
Camera
Prezzi
- chiuso
- dal 18 dicembre 2025 al 31 maggio 2026
Appartamento da 80 € ad appartamento e al giorno
Per la lista dettagliata dei prezzi vedi www.hausflorian.info

